ul. Starogardzka/Borkowska przy rondzie, Gdańsk
Poniedziałek - Piątek: 09:00 - 17:00
tel. 58 670 45 16
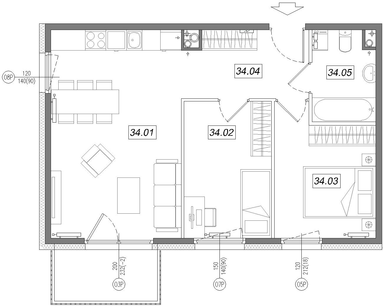
54.66m² Metraż
3 Pokoje
dostępne
| Nr oferty: | 7.A.34 |
| Piętro: | 3 |
| Cena za 1 m²: | 11 105 zł |
| Odbiór od: | 2026-11-16 |
| Cechy: |
Dokumenty do pobrania:
54.66m² Metraż
3 Pokoje
dostępne
| Nr oferty: | 7.A.34 |
| Piętro: | 3 |
| Cena za 1 m²: | 11 105 zł |
| Odbiór od: | 2026-11-16 |
| Cechy: |

