Domesta Deweloper Gdańsk
Domesta Deweloper Gdańsk
Nowe Południe
  • O inwestycji
  • Lokalizacja
  • Plany 3D
  • Galeria
  • Cennik
  • Kontakt
  • Znajdź swoje mieszkanie
  • Skontaktuj się z działem sprzedaży dewelopera
  • Dodaj mieszkanie do ulubionych
    Wyślij do siebie
Domesta Deweloper Gdańsk
  • Lista inwestycji
  • Remedium - Gdańsk Aniołki
  • GreenLine - Gdańsk Matemblewo
  • #NaSwoim2 - Gdańsk Chełm
  • Urzeka - Gdańsk Jasień
  • Nowe Południe - Gdańsk Południe
  • Oferta
  • Nowe mieszkania w Gdańsku
  • Mieszkania z odbiorem w 2025 roku
  • Mieszkania z odbiorem w 2026 roku
  • Kawalerki
  • Mieszkania 2 pokojowe
  • Mieszkania 3 pokojowe
  • Mieszkania 4 pokojowe
  • Apartamenty inwestycyjne w Gdańsku
  • Mapa inwestycji
  • Aktualności
  • Kredyty
  • Wykończenie pod klucz
  • Firma
  • Deweloper DOMESTA
  • Zrealizowane inwestycje
  • Deweloper z Gwarancją Plus
  • Domesta Rzetelny Deweloper
  • Wizualizacja i realizacja
  • Prace budowlane
  • Kariera
  • Zakup gruntów
  • Współpraca z podwykonawcami
  • Relacje inwestorskie
  • Polityka prywatności
  • Blog
  • Kontakt
Nowe Południe
  • O inwestycji
  • Lokalizacja
  • Plany 3D
  • Galeria
  • Cennik
  • Kontakt

Cennik nieruchomości Nowe Południe

Strona Główna Nieruchomości w naszej ofercie Mieszkania Nowe Południe
  • Znajdź mieszkanieZnajdź mieszkanie

Oferta jest na bieżąco aktualizowana

  • Lista
  • 3D
NR.
POKOJE
PIĘTRO
METRAŻ
CENA ZA 1M²
CECHY
ODBIÓR OD
CENA BRUTTO
4.A.26 3 4 67.12 m²

Cena przed promocją: 9 997 zł

9 699 zł

Najniższa cena z ostatnich 30 dni: 9 997 zł

 Gotowe do odbioru Balkon Rabat do 20 000!
2026-01-05

Cena przed promocją: 671 000 zł

651 000 zł

Najniższa cena z ostatnich 30 dni: 671 000 zł

4.B.18 3 2 67.47 m²

Cena przed promocją: 9 471 zł

9 174 zł

Najniższa cena z ostatnich 30 dni: 9 471 zł

 Gotowe do odbioru Balkon Rabat do 20 000!
2026-01-05

Cena przed promocją: 639 000 zł

619 000 zł

Najniższa cena z ostatnich 30 dni: 639 000 zł

4.B.25 3 3 67.47 m²

Cena przed promocją: 9 678 zł

9 234 zł

Najniższa cena z ostatnich 30 dni: 9 678 zł

 Gotowe do odbioru Balkon Rabat do 20 000!
2026-01-05

Cena przed promocją: 653 000 zł

623 000 zł

Najniższa cena z ostatnich 30 dni: 653 000 zł

4.B.30 2 4 45.50 m² 11 319 zł
 Gotowe do odbioru Balkon
2026-01-05 515 000 zł
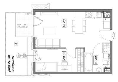
5.A.05 3 parter 64.56 m² 10 254 zł
Ogródek Mieszkanie dostosowane do potrzeb osób z niepełnosprawnością
2026-07-15 662 000 zł
5.A.06 3 1 65.08 m² 10 003 zł
Balkon
2026-07-15 651 000 zł
5.A.10 3 1 65.02 m² 10 012 zł
Balkon
2026-07-15 651 000 zł
5.A.11 3 2 65.08 m² 10 172 zł
Balkon
2026-07-15 662 000 zł
5.A.15 3 2 65.02 m² 10 181 zł
Balkon
2026-07-15 662 000 zł
5.A.16 3 3 65.08 m² 10 372 zł
Balkon
2026-07-15 675 000 zł
5.A.20 3 3 65.02 m² 10 381 zł
Balkon
2026-07-15 675 000 zł
5.A.25 3 4 65.02 m² 10 658 zł
Balkon
2026-07-15 693 000 zł
5.A.26 3 5 65.08 m² 10 725 zł
Balkon
2026-07-15 698 000 zł
5.A.30 3 5 65.02 m² 10 735 zł
Balkon
2026-07-15 698 000 zł
9.A.01 2 parter 47.43 m² 10 521 zł
Ogródek
2026-11-16 499 000 zł
9.A.02 2 parter 44.90 m² 10 913 zł
Ogródek
2026-11-16 490 000 zł
9.A.03 2 parter 43.88 m² 11 053 zł
Ogródek
2026-11-16 485 000 zł
9.A.04 2 parter 45.51 m² 10 855 zł
Ogródek
2026-11-16 494 000 zł
9.A.07 2 1 45.50 m² 10 703 zł
Balkon
2026-11-16 487 000 zł
9.A.12 3 2 67.47 m² 9 990 zł
Balkon
2026-11-16 674 000 zł
9.A.14 2 2 45.50 m² 10 879 zł
Balkon
2026-11-16 495 000 zł
9.A.16 2 2 45.92 m² 10 823 zł
Balkon
2026-11-16 497 000 zł
9.A.17 2 2 46.03 m² 10 624 zł
Balkon
2026-11-16 489 000 zł
9.A.19 3 3 67.47 m² 10 182 zł
Balkon
2026-11-16 687 000 zł
9.A.21 2 3 45.50 m² 11 077 zł
Balkon
2026-11-16 504 000 zł
9.A.23 2 3 45.92 m² 11 019 zł
Balkon
2026-11-16 506 000 zł
9.A.25 2 3 36.27 m² 12 214 zł
Balkon
2026-11-16 443 000 zł
9.A.26 3 4 67.47 m² 10 360 zł
Balkon
2026-11-16 699 000 zł
9.A.28 2 4 45.50 m² 11 297 zł
Balkon
2026-11-16 514 000 zł
9.A.29 2 4 44.26 m² 11 342 zł
Balkon
2026-11-16 502 000 zł
9.A.30 2 4 45.92 m² 11 215 zł
Balkon
2026-11-16 515 000 zł
9.A.31 2 4 46.03 m² 11 015 zł
Balkon
2026-11-16 507 000 zł
9.A.32 2 4 36.27 m² 12 407 zł
Balkon
2026-11-16 450 000 zł
9.B.01 2 parter 45.51 m² 10 855 zł
Ogródek
2026-11-16 494 000 zł
9.B.02 2 parter 43.88 m² 11 053 zł
Ogródek
2026-11-16 485 000 zł
9.B.03 2 parter 44.90 m² 10 891 zł
Ogródek
2026-11-16 489 000 zł
9.B.07 2 1 45.92 m² 10 649 zł
Balkon
2026-11-16 489 000 zł
9.B.09 2 1 45.50 m² 10 703 zł
Balkon
2026-11-16 487 000 zł
9.B.13 2 2 46.03 m² 10 624 zł
Balkon
2026-11-16 489 000 zł
9.B.14 2 2 45.92 m² 10 867 zł
Balkon
2026-11-16 499 000 zł
9.B.16 2 2 45.50 m² 10 835 zł
Balkon
2026-11-16 493 000 zł
9.B.18 3 2 67.33 m² 10 025 zł
Balkon
2026-11-16 675 000 zł
9.B.19 2 3 36.27 m² 12 214 zł
Balkon
2026-11-16 443 000 zł
9.B.20 2 3 46.03 m² 10 819 zł
Balkon
2026-11-16 498 000 zł
9.B.21 2 3 45.92 m² 11 063 zł
Balkon
2026-11-16 508 000 zł
9.B.23 2 3 45.50 m² 11 055 zł
Balkon
2026-11-16 503 000 zł
9.B.25 3 3 67.33 m² 10 233 zł
Balkon
2026-11-16 689 000 zł
9.B.26 2 4 36.27 m² 12 407 zł
Balkon
2026-11-16 450 000 zł
9.B.27 2 4 46.03 m² 11 015 zł
Balkon
2026-11-16 507 000 zł
9.B.28 2 4 45.92 m² 11 259 zł
Balkon
2026-11-16 517 000 zł
9.B.29 2 4 44.26 m² 11 295 zł
Balkon
2026-11-16 499 900 zł
9.B.30 2 4 45.50 m² 11 231 zł
Balkon
2026-11-16 511 000 zł
9.B.31 2 4 47.79 m² 11 906 zł
Balkon
2026-11-16 569 000 zł
9.B.32 3 4 67.33 m² 10 486 zł
Balkon
2026-11-16 706 000 zł
4.A.07 2 1 45.50 m² 10 484 zł
 Gotowe do odbioru Balkon
2026-01-05 477 000 zł umowa rezerwacyjna
4.A.12 3 2 67.12 m²

Cena przed promocją: 9 505 zł

9 207 zł

Najniższa cena z ostatnich 30 dni: 9 505 zł

 Gotowe do odbioru Balkon Rabat do 20 000!
2026-01-05

Cena przed promocją: 638 000 zł

618 000 zł

Najniższa cena z ostatnich 30 dni: 638 000 zł

umowa rezerwacyjna
4.A.17 2 2 46.03 m² 10 298 zł
 Gotowe do odbioru Balkon
2026-01-05 474 000 zł umowa rezerwacyjna
4.A.19 3 3 67.12 m²

Cena przed promocją: 9 729 zł

9 431 zł

Najniższa cena z ostatnich 30 dni: 9 729 zł

 Gotowe do odbioru Balkon Rabat do 20 000!
2026-01-05

Cena przed promocją: 653 000 zł

633 000 zł

Najniższa cena z ostatnich 30 dni: 653 000 zł

umowa rezerwacyjna
4.A.28 2 4 45.50 m² 11 297 zł
 Gotowe do odbioru Balkon
2026-01-05 514 000 zł umowa rezerwacyjna
4.A.30 2 4 45.92 m² 11 280 zł
 Gotowe do odbioru Balkon
2026-01-05 518 000 zł umowa rezerwacyjna
4.A.7 2 1 45.50 m² 10 484 zł
 Gotowe do odbioru
2026-01-05 477 000 zł umowa rezerwacyjna
4.B.14 2 2 45.92 m² 10 693 zł
 Gotowe do odbioru Balkon
2026-01-05 491 000 zł umowa rezerwacyjna
4.B.23 2 3 45.50 m² 10 747 zł
 Gotowe do odbioru Balkon
2026-01-05 489 000 zł umowa rezerwacyjna
5.A.04 2 parter 48.62 m² 10 510 zł
Duży ogródek Ogródek Dwustronne mieszkania
2026-07-15 511 000 zł umowa rezerwacyjna
5.A.29 2 5 49.01 m² 10 957 zł
Balkon
2026-07-15 537 000 zł umowa rezerwacyjna
9.A.06 2 1 47.79 m² 10 232 zł
Balkon
2026-11-16 489 000 zł umowa rezerwacyjna
9.A.08 2 1 44.26 m² 10 732 zł
Balkon
2026-11-16 475 000 zł umowa rezerwacyjna
9.A.13 2 2 47.79 m² 10 400 zł
Balkon
2026-11-16 497 000 zł umowa rezerwacyjna
9.A.15 2 2 44.26 m² 10 935 zł
Balkon
2026-11-16 484 000 zł umowa rezerwacyjna
9.A.18 2 2 36.27 m² 11 993 zł
Balkon
2026-11-16 435 000 zł umowa rezerwacyjna
9.A.20 2 3 47.79 m² 10 609 zł
Balkon
2026-11-16 507 000 zł umowa rezerwacyjna
9.A.22 2 3 44.26 m² 11 139 zł
Balkon
2026-11-16 493 000 zł umowa rezerwacyjna
9.A.27 2 4 47.79 m² 10 818 zł
Balkon
2026-11-16 517 000 zł umowa rezerwacyjna
9.B.08 2 1 44.26 m² 10 709 zł
Balkon
2026-11-16 474 000 zł umowa rezerwacyjna
9.B.22 2 3 44.26 m² 11 094 zł
Balkon
2026-11-16 491 000 zł umowa rezerwacyjna
4.A.01 2 parter 47.43 m² 10 436 zł
 Gotowe do odbioru Ogródek
2026-01-05 495 000 zł sprzedane
4.A.02 2 parter 44.90 m² 10 690 zł
 Gotowe do odbioru Ogródek
2026-01-05 480 000 zł sprzedane
4.A.03 2 parter 43.88 m² 10 757 zł
 Gotowe do odbioru Ogródek
2026-01-05 472 000 zł sprzedane
4.A.04 2 parter 45.51 m² 10 679 zł
 Gotowe do odbioru Ogródek
2026-01-05 486 000 zł sprzedane
4.A.05 3 1 66.44 m² 9 693 zł
 Gotowe do odbioru Obszerny taras
2026-01-05 644 000 zł sprzedane
4.A.06 2 1 47.79 m² 10 107 zł
 Gotowe do odbioru Balkon
2026-01-05 483 000 zł sprzedane
4.A.08 2 1 44.26 m² 10 506 zł
 Gotowe do odbioru Balkon
2026-01-05 465 000 zł sprzedane
4.A.09 2 1 45.92 m² 10 497 zł
 Gotowe do odbioru Balkon
2026-01-05 482 000 zł sprzedane
4.A.1 2 parter 47.43 m² 10 436 zł
 Gotowe do odbioru
2026-01-05 495 000 zł sprzedane
4.A.10 2 1 45.68 m² 10 267 zł
 Gotowe do odbioru Obszerny taras
2026-01-05 469 000 zł sprzedane
4.A.11 2 1 35.99 m² 11 003 zł
 Gotowe do odbioru Balkon
2026-01-05 396 000 zł sprzedane
4.A.13 2 2 47.79 m² 10 232 zł
 Gotowe do odbioru Balkon
2026-01-05 489 000 zł sprzedane
4.A.14 2 2 45.50 m² 10 681 zł
 Gotowe do odbioru Balkon
2026-01-05 486 000 zł sprzedane
4.A.15 2 2 44.26 m² 10 709 zł
 Gotowe do odbioru Balkon
2026-01-05 474 000 zł sprzedane
4.A.16 2 2 45.92 m² 10 693 zł
 Gotowe do odbioru Balkon
2026-01-05 491 000 zł sprzedane
4.A.18 2 2 36.27 m² 11 304 zł
 Gotowe do odbioru Balkon
2026-01-05 410 000 zł sprzedane
4.A.2 2 parter 44.90 m² 10 690 zł
 Gotowe do odbioru
2026-01-05 480 000 zł sprzedane
4.A.20 2 3 47.79 m² 10 734 zł
 Gotowe do odbioru Balkon
2026-01-05 513 000 zł sprzedane
4.A.21 2 3 45.50 m² 10 967 zł
 Gotowe do odbioru Balkon
2026-01-05 499 000 zł sprzedane
4.A.22 2 3 44.26 m² 11 026 zł
 Gotowe do odbioru Balkon
2026-01-05 488 000 zł sprzedane
4.A.23 2 3 45.92 m² 10 976 zł
 Gotowe do odbioru Balkon
2026-01-05 504 000 zł sprzedane
4.A.24 2 3 46.03 m² 10 385 zł
 Gotowe do odbioru Balkon
2026-01-05 478 000 zł sprzedane
4.A.25 2 3 36.27 m² 11 718 zł
 Gotowe do odbioru Balkon
2026-01-05 425 000 zł sprzedane
4.A.27 2 4 47.79 m² 10 860 zł
 Gotowe do odbioru Balkon
2026-01-05 519 000 zł sprzedane
4.A.29 2 4 44.26 m² 11 410 zł
 Gotowe do odbioru Balkon
2026-01-05 505 000 zł sprzedane
4.A.3 2 parter 43.88 m² 10 757 zł
 Gotowe do odbioru
2026-01-05 472 000 zł sprzedane
4.A.31 2 4 46.03 m² 10 537 zł
 Gotowe do odbioru Balkon
2026-01-05 485 000 zł sprzedane
4.A.32 2 4 36.27 m² 11 993 zł
 Gotowe do odbioru Balkon
2026-01-05 435 000 zł sprzedane
4.A.4 2 parter 45.51 m² 10 679 zł
 Gotowe do odbioru
2026-01-05 486 000 zł sprzedane
4.A.6 2 1 47.79 m² 10 107 zł
 Gotowe do odbioru
2026-01-05 483 000 zł sprzedane
4.A.8 2 1 44.26 m² 10 506 zł
 Gotowe do odbioru
2026-01-05 465 000 zł sprzedane
4.A.9 2 1 45.92 m² 10 497 zł
 Gotowe do odbioru
2026-01-05 482 000 zł sprzedane
4.B.01 2 parter 45.51 m² 10 679 zł
 Gotowe do odbioru Ogródek
2026-01-05 486 000 zł sprzedane
4.B.02 2 parter 43.88 m² 10 757 zł
 Gotowe do odbioru Ogródek
2026-01-05 472 000 zł sprzedane
4.B.03 2 parter 44.90 m² 10 490 zł
 Gotowe do odbioru Ogródek
2026-01-05 471 000 zł sprzedane
4.B.04 2 parter 47.43 m² 10 436 zł
 Gotowe do odbioru Ogródek
2026-01-05 495 000 zł sprzedane
4.B.05 2 1 35.99 m² 10 697 zł
 Gotowe do odbioru Balkon
2026-01-05 385 000 zł sprzedane
4.B.06 2 1 45.68 m² 10 486 zł
 Gotowe do odbioru Obszerny taras Rabat do 20 000!
2026-01-05 479 000 zł sprzedane
4.B.07 2 1 45.92 m² 10 497 zł
 Gotowe do odbioru Balkon
2026-01-05 482 000 zł sprzedane
4.B.08 2 1 44.26 m² 10 506 zł
 Gotowe do odbioru Balkon
2026-01-05 465 000 zł sprzedane
4.B.09 2 1 45.50 m² 10 264 zł
 Gotowe do odbioru Balkon
2026-01-05 467 000 zł sprzedane
4.B.10 2 1 47.79 m² 10 316 zł
 Gotowe do odbioru Balkon
2026-01-05 493 000 zł sprzedane
4.B.11 3 1 66.79 m² 9 672 zł
 Gotowe do odbioru Obszerny taras
2026-01-05 646 000 zł sprzedane
4.B.12 2 2 36.27 m² 11 304 zł
 Gotowe do odbioru Balkon
2026-01-05 410 000 zł sprzedane
4.B.13 2 2 46.03 m² 10 298 zł
 Gotowe do odbioru Balkon
2026-01-05 474 000 zł sprzedane
4.B.15 2 2 44.26 m² 10 709 zł
 Gotowe do odbioru Balkon
2026-01-05 474 000 zł sprzedane
4.B.16 2 2 45.50 m² 10 462 zł
 Gotowe do odbioru Balkon
2026-01-05 476 000 zł sprzedane
4.B.17 2 2 47.79 m² 10 442 zł
 Gotowe do odbioru Balkon
2026-01-05 499 000 zł sprzedane
4.B.19 2 3 36.27 m² 11 718 zł
 Gotowe do odbioru Balkon
2026-01-05 425 000 zł sprzedane
4.B.20 2 3 46.03 m² 10 385 zł
 Gotowe do odbioru Balkon
2026-01-05 478 000 zł sprzedane
4.B.21 2 3 45.92 m² 10 997 zł
 Gotowe do odbioru Balkon
2026-01-05 505 000 zł sprzedane
4.B.22 2 3 44.26 m² 11 003 zł
 Gotowe do odbioru Balkon
2026-01-05 487 000 zł sprzedane
4.B.24 2 3 47.79 m² 10 734 zł
 Gotowe do odbioru Balkon
2026-01-05 513 000 zł sprzedane
4.B.26 2 4 36.27 m² 11 993 zł
 Gotowe do odbioru Balkon
2026-01-05 435 000 zł sprzedane
4.B.27 2 4 46.03 m² 10 537 zł
 Gotowe do odbioru Balkon
2026-01-05 485 000 zł sprzedane
4.B.28 2 4 45.92 m² 11 280 zł
 Gotowe do odbioru Balkon
2026-01-05 518 000 zł sprzedane
4.B.29 2 4 44.26 m² 11 410 zł
 Gotowe do odbioru Balkon Rabat do 20 000!
2026-01-05 505 000 zł sprzedane
4.B.31 2 4 47.79 m² 10 860 zł
 Gotowe do odbioru Balkon
2026-01-05 519 000 zł sprzedane
4.B.32 3 4 67.47 m² 9 990 zł
 Gotowe do odbioru Balkon
2026-01-05 674 000 zł sprzedane
4.B.5 2 1 35.99 m² 10 697 zł
 Gotowe do odbioru
2026-01-05 385 000 zł sprzedane
4.B.6 2 1 45.68 m² 10 486 zł
 Gotowe do odbioru
2026-01-05 479 000 zł sprzedane
4.B.7 2 1 45.92 m² 10 497 zł
 Gotowe do odbioru
2026-01-05 482 000 zł sprzedane
4.B.8 2 1 44.26 m² 10 506 zł
 Gotowe do odbioru
2026-01-05 465 000 zł sprzedane
4.B.9 2 1 45.50 m² 10 264 zł
 Gotowe do odbioru
2026-01-05 467 000 zł sprzedane
5.A.01 3 parter 64.82 m² 10 213 zł
Ogródek
2026-07-15 662 000 zł sprzedane
5.A.02 4 parter 78.07 m² 9 299 zł
Duży ogródek Ogródek Dwustronne mieszkania
2026-07-15 726 000 zł sprzedane
5.A.03 2 parter 38.59 m² 11 661 zł
Ogródek
2026-07-15 450 000 zł sprzedane
5.A.07 4 1 78.94 m² 9 045 zł
Balkon
2026-07-15 714 000 zł sprzedane
5.A.08 2 1 38.76 m² 11 352 zł
Balkon
2026-07-15 440 000 zł sprzedane
5.A.09 2 1 49.01 m² 10 324 zł
Balkon Dwustronne mieszkania
2026-07-15 506 000 zł sprzedane
5.A.12 4 2 78.94 m² 9 197 zł
Balkon
2026-07-15 726 000 zł sprzedane
5.A.13 2 2 38.76 m² 11 610 zł
Balkon
2026-07-15 450 000 zł sprzedane
5.A.14 2 2 49.01 m² 10 426 zł
Balkon Dwustronne mieszkania
2026-07-15 511 000 zł sprzedane
5.A.17 4 3 78.94 m² 9 298 zł
Balkon
2026-07-15 734 000 zł sprzedane
5.A.18 2 3 38.76 m² 11 713 zł
Balkon
2026-07-15 454 000 zł sprzedane
5.A.19 2 3 49.01 m² 10 549 zł
Balkon Dwustronne mieszkania
2026-07-15 517 000 zł sprzedane
5.A.21 3 4 65.08 m² 10 648 zł
Balkon
2026-07-15 693 000 zł sprzedane
5.A.22 4 4 78.94 m² 9 362 zł
Balkon
2026-07-15 739 000 zł sprzedane
5.A.23 2 4 38.76 m² 11 842 zł
Balkon
2026-07-15 459 000 zł sprzedane
5.A.24 2 4 49.01 m² 10 671 zł
Balkon Dwustronne mieszkania
2026-07-15 523 000 zł sprzedane
5.A.27 4 5 78.94 m² 9 476 zł
Balkon
2026-07-15 748 000 zł sprzedane
5.A.28 2 5 38.76 m² 11 945 zł
Balkon
2026-07-15 463 000 zł sprzedane
9.A.05 3 1 67.06 m² 9 857 zł
Obszerny taras
2026-11-16 661 000 zł sprzedane
9.A.09 2 1 45.92 m² 10 627 zł
Balkon
2026-11-16 488 000 zł sprzedane
9.A.10 2 1 45.68 m² 10 442 zł
Obszerny taras
2026-11-16 477 000 zł sprzedane
9.A.11 2 1 35.99 m² 11 809 zł
Obszerny taras
2026-11-16 425 000 zł sprzedane
9.A.24 2 3 46.03 m² 10 819 zł
Balkon
2026-11-16 498 000 zł sprzedane
9.B.04 2 parter 47.43 m² 10 605 zł
Ogródek
2026-11-16 503 000 zł sprzedane
9.B.05 2 1 35.99 m² 11 809 zł
Obszerny taras
2026-11-16 425 000 zł sprzedane
9.B.06 2 1 45.68 m² 10 442 zł
Obszerny taras
2026-11-16 477 000 zł sprzedane
9.B.10 2 1 47.79 m² 10 442 zł
Balkon
2026-11-16 499 000 zł sprzedane
9.B.11 3 1 66.63 m² 9 980 zł
Obszerny taras
2026-11-16 665 000 zł sprzedane
9.B.12 2 2 36.27 m² 11 993 zł
Balkon
2026-11-16 435 000 zł sprzedane
9.B.15 2 2 44.26 m² 10 890 zł
Balkon
2026-11-16 482 000 zł sprzedane
9.B.17 2 2 47.79 m² 10 525 zł
Balkon
2026-11-16 503 000 zł sprzedane
9.B.24 2 3 47.79 m² 10 724 zł
Balkon
2026-11-16 512 500 zł sprzedane
dostępne
67.12 m² Metraż

Cena przed promocją: 671 000 zł

651 000 zł

Najniższa cena z ostatnich 30 dni: 671 000 zł

Cena brutto
3 Pokoje
Inwestycja: Nowe Południe
Nr oferty: 4.A.26
Piętro: 4
Cena brutto za 1 m²:

Cena przed promocją: 9 997 zł

9 699 zł

Najniższa cena z ostatnich 30 dni: 9 997 zł

Odbiór od: 2026-01-05
Cechy:
 Gotowe do odbioru Balkon Rabat do 20 000!
dostępne
67.47 m² Metraż

Cena przed promocją: 639 000 zł

619 000 zł

Najniższa cena z ostatnich 30 dni: 639 000 zł

Cena brutto
3 Pokoje
Inwestycja: Nowe Południe
Nr oferty: 4.B.18
Piętro: 2
Cena brutto za 1 m²:

Cena przed promocją: 9 471 zł

9 174 zł

Najniższa cena z ostatnich 30 dni: 9 471 zł

Odbiór od: 2026-01-05
Cechy:
 Gotowe do odbioru Balkon Rabat do 20 000!
dostępne
67.47 m² Metraż

Cena przed promocją: 653 000 zł

623 000 zł

Najniższa cena z ostatnich 30 dni: 653 000 zł

Cena brutto
3 Pokoje
Inwestycja: Nowe Południe
Nr oferty: 4.B.25
Piętro: 3
Cena brutto za 1 m²:

Cena przed promocją: 9 678 zł

9 234 zł

Najniższa cena z ostatnich 30 dni: 9 678 zł

Odbiór od: 2026-01-05
Cechy:
 Gotowe do odbioru Balkon Rabat do 20 000!
dostępne
45.50 m² Metraż
515 000 zł Cena brutto
2 Pokoje
Inwestycja: Nowe Południe
Nr oferty: 4.B.30
Piętro: 4
Cena brutto za 1 m²: 11 319 zł
Odbiór od: 2026-01-05
Cechy:
 Gotowe do odbioru Balkon
dostępne
64.56 m² Metraż
662 000 zł Cena brutto
3 Pokoje
Inwestycja: Nowe Południe
Nr oferty: 5.A.05
Piętro: parter
Cena brutto za 1 m²: 10 254 zł
Odbiór od: 2026-07-15
Cechy:
Ogródek Mieszkanie dostosowane do potrzeb osób z niepełnosprawnością
dostępne
65.08 m² Metraż
651 000 zł Cena brutto
3 Pokoje
Inwestycja: Nowe Południe
Nr oferty: 5.A.06
Piętro: 1
Cena brutto za 1 m²: 10 003 zł
Odbiór od: 2026-07-15
Cechy:
Balkon
dostępne
65.02 m² Metraż
651 000 zł Cena brutto
3 Pokoje
Inwestycja: Nowe Południe
Nr oferty: 5.A.10
Piętro: 1
Cena brutto za 1 m²: 10 012 zł
Odbiór od: 2026-07-15
Cechy:
Balkon
dostępne
65.08 m² Metraż
662 000 zł Cena brutto
3 Pokoje
Inwestycja: Nowe Południe
Nr oferty: 5.A.11
Piętro: 2
Cena brutto za 1 m²: 10 172 zł
Odbiór od: 2026-07-15
Cechy:
Balkon
dostępne
65.02 m² Metraż
662 000 zł Cena brutto
3 Pokoje
Inwestycja: Nowe Południe
Nr oferty: 5.A.15
Piętro: 2
Cena brutto za 1 m²: 10 181 zł
Odbiór od: 2026-07-15
Cechy:
Balkon
dostępne
65.08 m² Metraż
675 000 zł Cena brutto
3 Pokoje
Inwestycja: Nowe Południe
Nr oferty: 5.A.16
Piętro: 3
Cena brutto za 1 m²: 10 372 zł
Odbiór od: 2026-07-15
Cechy:
Balkon
dostępne
65.02 m² Metraż
675 000 zł Cena brutto
3 Pokoje
Inwestycja: Nowe Południe
Nr oferty: 5.A.20
Piętro: 3
Cena brutto za 1 m²: 10 381 zł
Odbiór od: 2026-07-15
Cechy:
Balkon
dostępne
65.02 m² Metraż
693 000 zł Cena brutto
3 Pokoje
Inwestycja: Nowe Południe
Nr oferty: 5.A.25
Piętro: 4
Cena brutto za 1 m²: 10 658 zł
Odbiór od: 2026-07-15
Cechy:
Balkon
dostępne
65.08 m² Metraż
698 000 zł Cena brutto
3 Pokoje
Inwestycja: Nowe Południe
Nr oferty: 5.A.26
Piętro: 5
Cena brutto za 1 m²: 10 725 zł
Odbiór od: 2026-07-15
Cechy:
Balkon
dostępne
65.02 m² Metraż
698 000 zł Cena brutto
3 Pokoje
Inwestycja: Nowe Południe
Nr oferty: 5.A.30
Piętro: 5
Cena brutto za 1 m²: 10 735 zł
Odbiór od: 2026-07-15
Cechy:
Balkon
dostępne
47.43 m² Metraż
499 000 zł Cena brutto
2 Pokoje
Inwestycja: Nowe Południe
Nr oferty: 9.A.01
Piętro: parter
Cena brutto za 1 m²: 10 521 zł
Odbiór od: 2026-11-16
Cechy:
Ogródek
dostępne
44.90 m² Metraż
490 000 zł Cena brutto
2 Pokoje
Inwestycja: Nowe Południe
Nr oferty: 9.A.02
Piętro: parter
Cena brutto za 1 m²: 10 913 zł
Odbiór od: 2026-11-16
Cechy:
Ogródek
dostępne
43.88 m² Metraż
485 000 zł Cena brutto
2 Pokoje
Inwestycja: Nowe Południe
Nr oferty: 9.A.03
Piętro: parter
Cena brutto za 1 m²: 11 053 zł
Odbiór od: 2026-11-16
Cechy:
Ogródek
dostępne
45.51 m² Metraż
494 000 zł Cena brutto
2 Pokoje
Inwestycja: Nowe Południe
Nr oferty: 9.A.04
Piętro: parter
Cena brutto za 1 m²: 10 855 zł
Odbiór od: 2026-11-16
Cechy:
Ogródek
dostępne
45.50 m² Metraż
487 000 zł Cena brutto
2 Pokoje
Inwestycja: Nowe Południe
Nr oferty: 9.A.07
Piętro: 1
Cena brutto za 1 m²: 10 703 zł
Odbiór od: 2026-11-16
Cechy:
Balkon
dostępne
67.47 m² Metraż
674 000 zł Cena brutto
3 Pokoje
Inwestycja: Nowe Południe
Nr oferty: 9.A.12
Piętro: 2
Cena brutto za 1 m²: 9 990 zł
Odbiór od: 2026-11-16
Cechy:
Balkon
dostępne
45.50 m² Metraż
495 000 zł Cena brutto
2 Pokoje
Inwestycja: Nowe Południe
Nr oferty: 9.A.14
Piętro: 2
Cena brutto za 1 m²: 10 879 zł
Odbiór od: 2026-11-16
Cechy:
Balkon
dostępne
45.92 m² Metraż
497 000 zł Cena brutto
2 Pokoje
Inwestycja: Nowe Południe
Nr oferty: 9.A.16
Piętro: 2
Cena brutto za 1 m²: 10 823 zł
Odbiór od: 2026-11-16
Cechy:
Balkon
dostępne
46.03 m² Metraż
489 000 zł Cena brutto
2 Pokoje
Inwestycja: Nowe Południe
Nr oferty: 9.A.17
Piętro: 2
Cena brutto za 1 m²: 10 624 zł
Odbiór od: 2026-11-16
Cechy:
Balkon
dostępne
67.47 m² Metraż
687 000 zł Cena brutto
3 Pokoje
Inwestycja: Nowe Południe
Nr oferty: 9.A.19
Piętro: 3
Cena brutto za 1 m²: 10 182 zł
Odbiór od: 2026-11-16
Cechy:
Balkon
dostępne
45.50 m² Metraż
504 000 zł Cena brutto
2 Pokoje
Inwestycja: Nowe Południe
Nr oferty: 9.A.21
Piętro: 3
Cena brutto za 1 m²: 11 077 zł
Odbiór od: 2026-11-16
Cechy:
Balkon
dostępne
45.92 m² Metraż
506 000 zł Cena brutto
2 Pokoje
Inwestycja: Nowe Południe
Nr oferty: 9.A.23
Piętro: 3
Cena brutto za 1 m²: 11 019 zł
Odbiór od: 2026-11-16
Cechy:
Balkon
dostępne
36.27 m² Metraż
443 000 zł Cena brutto
2 Pokoje
Inwestycja: Nowe Południe
Nr oferty: 9.A.25
Piętro: 3
Cena brutto za 1 m²: 12 214 zł
Odbiór od: 2026-11-16
Cechy:
Balkon
dostępne
67.47 m² Metraż
699 000 zł Cena brutto
3 Pokoje
Inwestycja: Nowe Południe
Nr oferty: 9.A.26
Piętro: 4
Cena brutto za 1 m²: 10 360 zł
Odbiór od: 2026-11-16
Cechy:
Balkon
dostępne
45.50 m² Metraż
514 000 zł Cena brutto
2 Pokoje
Inwestycja: Nowe Południe
Nr oferty: 9.A.28
Piętro: 4
Cena brutto za 1 m²: 11 297 zł
Odbiór od: 2026-11-16
Cechy:
Balkon
dostępne
44.26 m² Metraż
502 000 zł Cena brutto
2 Pokoje
Inwestycja: Nowe Południe
Nr oferty: 9.A.29
Piętro: 4
Cena brutto za 1 m²: 11 342 zł
Odbiór od: 2026-11-16
Cechy:
Balkon
dostępne
45.92 m² Metraż
515 000 zł Cena brutto
2 Pokoje
Inwestycja: Nowe Południe
Nr oferty: 9.A.30
Piętro: 4
Cena brutto za 1 m²: 11 215 zł
Odbiór od: 2026-11-16
Cechy:
Balkon
dostępne
46.03 m² Metraż
507 000 zł Cena brutto
2 Pokoje
Inwestycja: Nowe Południe
Nr oferty: 9.A.31
Piętro: 4
Cena brutto za 1 m²: 11 015 zł
Odbiór od: 2026-11-16
Cechy:
Balkon
dostępne
36.27 m² Metraż
450 000 zł
Cena brutto
2 Pokoje
Inwestycja: Nowe Południe
Nr oferty: 9.A.32
Piętro: 4
Cena brutto za 1 m²: 12 407 zł
Odbiór od: 2026-11-16
Cechy:
Balkon
dostępne
45.51 m² Metraż
494 000 zł Cena brutto
2 Pokoje
Inwestycja: Nowe Południe
Nr oferty: 9.B.01
Piętro: parter
Cena brutto za 1 m²: 10 855 zł
Odbiór od: 2026-11-16
Cechy:
Ogródek
dostępne
43.88 m² Metraż
485 000 zł Cena brutto
2 Pokoje
Inwestycja: Nowe Południe
Nr oferty: 9.B.02
Piętro: parter
Cena brutto za 1 m²: 11 053 zł
Odbiór od: 2026-11-16
Cechy:
Ogródek
dostępne
44.90 m² Metraż
489 000 zł Cena brutto
2 Pokoje
Inwestycja: Nowe Południe
Nr oferty: 9.B.03
Piętro: parter
Cena brutto za 1 m²: 10 891 zł
Odbiór od: 2026-11-16
Cechy:
Ogródek
dostępne
45.92 m² Metraż
489 000 zł Cena brutto
2 Pokoje
Inwestycja: Nowe Południe
Nr oferty: 9.B.07
Piętro: 1
Cena brutto za 1 m²: 10 649 zł
Odbiór od: 2026-11-16
Cechy:
Balkon
dostępne
45.50 m² Metraż
487 000 zł Cena brutto
2 Pokoje
Inwestycja: Nowe Południe
Nr oferty: 9.B.09
Piętro: 1
Cena brutto za 1 m²: 10 703 zł
Odbiór od: 2026-11-16
Cechy:
Balkon
dostępne
46.03 m² Metraż
489 000 zł Cena brutto
2 Pokoje
Inwestycja: Nowe Południe
Nr oferty: 9.B.13
Piętro: 2
Cena brutto za 1 m²: 10 624 zł
Odbiór od: 2026-11-16
Cechy:
Balkon
dostępne
45.92 m² Metraż
499 000 zł Cena brutto
2 Pokoje
Inwestycja: Nowe Południe
Nr oferty: 9.B.14
Piętro: 2
Cena brutto za 1 m²: 10 867 zł
Odbiór od: 2026-11-16
Cechy:
Balkon
dostępne
45.50 m² Metraż
493 000 zł Cena brutto
2 Pokoje
Inwestycja: Nowe Południe
Nr oferty: 9.B.16
Piętro: 2
Cena brutto za 1 m²: 10 835 zł
Odbiór od: 2026-11-16
Cechy:
Balkon
dostępne
67.33 m² Metraż
675 000 zł Cena brutto
3 Pokoje
Inwestycja: Nowe Południe
Nr oferty: 9.B.18
Piętro: 2
Cena brutto za 1 m²: 10 025 zł
Odbiór od: 2026-11-16
Cechy:
Balkon
dostępne
36.27 m² Metraż
443 000 zł Cena brutto
2 Pokoje
Inwestycja: Nowe Południe
Nr oferty: 9.B.19
Piętro: 3
Cena brutto za 1 m²: 12 214 zł
Odbiór od: 2026-11-16
Cechy:
Balkon
dostępne
46.03 m² Metraż
498 000 zł Cena brutto
2 Pokoje
Inwestycja: Nowe Południe
Nr oferty: 9.B.20
Piętro: 3
Cena brutto za 1 m²: 10 819 zł
Odbiór od: 2026-11-16
Cechy:
Balkon
dostępne
45.92 m² Metraż
508 000 zł Cena brutto
2 Pokoje
Inwestycja: Nowe Południe
Nr oferty: 9.B.21
Piętro: 3
Cena brutto za 1 m²: 11 063 zł
Odbiór od: 2026-11-16
Cechy:
Balkon
dostępne
45.50 m² Metraż
503 000 zł Cena brutto
2 Pokoje
Inwestycja: Nowe Południe
Nr oferty: 9.B.23
Piętro: 3
Cena brutto za 1 m²: 11 055 zł
Odbiór od: 2026-11-16
Cechy:
Balkon
dostępne
67.33 m² Metraż
689 000 zł Cena brutto
3 Pokoje
Inwestycja: Nowe Południe
Nr oferty: 9.B.25
Piętro: 3
Cena brutto za 1 m²: 10 233 zł
Odbiór od: 2026-11-16
Cechy:
Balkon
dostępne
36.27 m² Metraż
450 000 zł Cena brutto
2 Pokoje
Inwestycja: Nowe Południe
Nr oferty: 9.B.26
Piętro: 4
Cena brutto za 1 m²: 12 407 zł
Odbiór od: 2026-11-16
Cechy:
Balkon
dostępne
46.03 m² Metraż
507 000 zł Cena brutto
2 Pokoje
Inwestycja: Nowe Południe
Nr oferty: 9.B.27
Piętro: 4
Cena brutto za 1 m²: 11 015 zł
Odbiór od: 2026-11-16
Cechy:
Balkon
dostępne
45.92 m² Metraż
517 000 zł Cena brutto
2 Pokoje
Inwestycja: Nowe Południe
Nr oferty: 9.B.28
Piętro: 4
Cena brutto za 1 m²: 11 259 zł
Odbiór od: 2026-11-16
Cechy:
Balkon
dostępne
44.26 m² Metraż
499 900 zł Cena brutto
2 Pokoje
Inwestycja: Nowe Południe
Nr oferty: 9.B.29
Piętro: 4
Cena brutto za 1 m²: 11 295 zł
Odbiór od: 2026-11-16
Cechy:
Balkon
dostępne
45.50 m² Metraż
511 000 zł Cena brutto
2 Pokoje
Inwestycja: Nowe Południe
Nr oferty: 9.B.30
Piętro: 4
Cena brutto za 1 m²: 11 231 zł
Odbiór od: 2026-11-16
Cechy:
Balkon
dostępne
47.79 m² Metraż
569 000 zł Cena brutto
2 Pokoje
Inwestycja: Nowe Południe
Nr oferty: 9.B.31
Piętro: 4
Cena brutto za 1 m²: 11 906 zł
Odbiór od: 2026-11-16
Cechy:
Balkon
dostępne
67.33 m² Metraż
706 000 zł Cena brutto
3 Pokoje
Inwestycja: Nowe Południe
Nr oferty: 9.B.32
Piętro: 4
Cena brutto za 1 m²: 10 486 zł
Odbiór od: 2026-11-16
Cechy:
Balkon
umowa rezerwacyjna
45.50 m² Metraż
477 000 zł Cena brutto
2 Pokoje
Inwestycja: Nowe Południe
Nr oferty: 4.A.07
Piętro: 1
Cena brutto za 1 m²: 10 484 zł
Odbiór od: 2026-01-05
Cechy:
 Gotowe do odbioru Balkon
umowa rezerwacyjna
67.12 m² Metraż

Cena przed promocją: 638 000 zł

618 000 zł

Najniższa cena z ostatnich 30 dni: 638 000 zł

Cena brutto
3 Pokoje
Inwestycja: Nowe Południe
Nr oferty: 4.A.12
Piętro: 2
Cena brutto za 1 m²:

Cena przed promocją: 9 505 zł

9 207 zł

Najniższa cena z ostatnich 30 dni: 9 505 zł

Odbiór od: 2026-01-05
Cechy:
 Gotowe do odbioru Balkon Rabat do 20 000!
umowa rezerwacyjna
46.03 m² Metraż
474 000 zł Cena brutto
2 Pokoje
Inwestycja: Nowe Południe
Nr oferty: 4.A.17
Piętro: 2
Cena brutto za 1 m²: 10 298 zł
Odbiór od: 2026-01-05
Cechy:
 Gotowe do odbioru Balkon
umowa rezerwacyjna
67.12 m² Metraż

Cena przed promocją: 653 000 zł

633 000 zł

Najniższa cena z ostatnich 30 dni: 653 000 zł

Cena brutto
3 Pokoje
Inwestycja: Nowe Południe
Nr oferty: 4.A.19
Piętro: 3
Cena brutto za 1 m²:

Cena przed promocją: 9 729 zł

9 431 zł

Najniższa cena z ostatnich 30 dni: 9 729 zł

Odbiór od: 2026-01-05
Cechy:
 Gotowe do odbioru Balkon Rabat do 20 000!
umowa rezerwacyjna
45.50 m² Metraż
514 000 zł Cena brutto
2 Pokoje
Inwestycja: Nowe Południe
Nr oferty: 4.A.28
Piętro: 4
Cena brutto za 1 m²: 11 297 zł
Odbiór od: 2026-01-05
Cechy:
 Gotowe do odbioru Balkon
umowa rezerwacyjna
45.92 m² Metraż
518 000 zł Cena brutto
2 Pokoje
Inwestycja: Nowe Południe
Nr oferty: 4.A.30
Piętro: 4
Cena brutto za 1 m²: 11 280 zł
Odbiór od: 2026-01-05
Cechy:
 Gotowe do odbioru Balkon
umowa rezerwacyjna
45.50 m² Metraż
477 000 zł Cena brutto
2 Pokoje
Inwestycja: Nowe Południe
Nr oferty: 4.A.7
Piętro: 1
Cena brutto za 1 m²: 10 484 zł
Odbiór od: 2026-01-05
Cechy:
 Gotowe do odbioru
umowa rezerwacyjna
45.92 m² Metraż
491 000 zł Cena brutto
2 Pokoje
Inwestycja: Nowe Południe
Nr oferty: 4.B.14
Piętro: 2
Cena brutto za 1 m²: 10 693 zł
Odbiór od: 2026-01-05
Cechy:
 Gotowe do odbioru Balkon
umowa rezerwacyjna
45.50 m² Metraż
489 000 zł Cena brutto
2 Pokoje
Inwestycja: Nowe Południe
Nr oferty: 4.B.23
Piętro: 3
Cena brutto za 1 m²: 10 747 zł
Odbiór od: 2026-01-05
Cechy:
 Gotowe do odbioru Balkon
umowa rezerwacyjna
48.62 m² Metraż
511 000 zł Cena brutto
2 Pokoje
Inwestycja: Nowe Południe
Nr oferty: 5.A.04
Piętro: parter
Cena brutto za 1 m²: 10 510 zł
Odbiór od: 2026-07-15
Cechy:
Duży ogródek Ogródek Dwustronne mieszkania
umowa rezerwacyjna
49.01 m² Metraż
537 000 zł Cena brutto
2 Pokoje
Inwestycja: Nowe Południe
Nr oferty: 5.A.29
Piętro: 5
Cena brutto za 1 m²: 10 957 zł
Odbiór od: 2026-07-15
Cechy:
Balkon
umowa rezerwacyjna
47.79 m² Metraż
489 000 zł Cena brutto
2 Pokoje
Inwestycja: Nowe Południe
Nr oferty: 9.A.06
Piętro: 1
Cena brutto za 1 m²: 10 232 zł
Odbiór od: 2026-11-16
Cechy:
Balkon
umowa rezerwacyjna
44.26 m² Metraż
475 000 zł Cena brutto
2 Pokoje
Inwestycja: Nowe Południe
Nr oferty: 9.A.08
Piętro: 1
Cena brutto za 1 m²: 10 732 zł
Odbiór od: 2026-11-16
Cechy:
Balkon
umowa rezerwacyjna
47.79 m² Metraż
497 000 zł Cena brutto
2 Pokoje
Inwestycja: Nowe Południe
Nr oferty: 9.A.13
Piętro: 2
Cena brutto za 1 m²: 10 400 zł
Odbiór od: 2026-11-16
Cechy:
Balkon
umowa rezerwacyjna
44.26 m² Metraż
484 000 zł Cena brutto
2 Pokoje
Inwestycja: Nowe Południe
Nr oferty: 9.A.15
Piętro: 2
Cena brutto za 1 m²: 10 935 zł
Odbiór od: 2026-11-16
Cechy:
Balkon
umowa rezerwacyjna
36.27 m² Metraż
435 000 zł Cena brutto
2 Pokoje
Inwestycja: Nowe Południe
Nr oferty: 9.A.18
Piętro: 2
Cena brutto za 1 m²: 11 993 zł
Odbiór od: 2026-11-16
Cechy:
Balkon
umowa rezerwacyjna
47.79 m² Metraż
507 000 zł Cena brutto
2 Pokoje
Inwestycja: Nowe Południe
Nr oferty: 9.A.20
Piętro: 3
Cena brutto za 1 m²: 10 609 zł
Odbiór od: 2026-11-16
Cechy:
Balkon
umowa rezerwacyjna
44.26 m² Metraż
493 000 zł Cena brutto
2 Pokoje
Inwestycja: Nowe Południe
Nr oferty: 9.A.22
Piętro: 3
Cena brutto za 1 m²: 11 139 zł
Odbiór od: 2026-11-16
Cechy:
Balkon
umowa rezerwacyjna
47.79 m² Metraż
517 000 zł Cena brutto
2 Pokoje
Inwestycja: Nowe Południe
Nr oferty: 9.A.27
Piętro: 4
Cena brutto za 1 m²: 10 818 zł
Odbiór od: 2026-11-16
Cechy:
Balkon
umowa rezerwacyjna
44.26 m² Metraż
474 000 zł Cena brutto
2 Pokoje
Inwestycja: Nowe Południe
Nr oferty: 9.B.08
Piętro: 1
Cena brutto za 1 m²: 10 709 zł
Odbiór od: 2026-11-16
Cechy:
Balkon
umowa rezerwacyjna
44.26 m² Metraż
491 000 zł Cena brutto
2 Pokoje
Inwestycja: Nowe Południe
Nr oferty: 9.B.22
Piętro: 3
Cena brutto za 1 m²: 11 094 zł
Odbiór od: 2026-11-16
Cechy:
Balkon
sprzedane
47.43 m² Metraż
495 000 zł Cena brutto
2 Pokoje
Inwestycja: Nowe Południe
Nr oferty: 4.A.01
Piętro: parter
Cena brutto za 1 m²: 10 436 zł
Odbiór od: 2026-01-05
Cechy:
 Gotowe do odbioru Ogródek
sprzedane
44.90 m² Metraż
480 000 zł Cena brutto
2 Pokoje
Inwestycja: Nowe Południe
Nr oferty: 4.A.02
Piętro: parter
Cena brutto za 1 m²: 10 690 zł
Odbiór od: 2026-01-05
Cechy:
 Gotowe do odbioru Ogródek
sprzedane
43.88 m² Metraż
472 000 zł Cena brutto
2 Pokoje
Inwestycja: Nowe Południe
Nr oferty: 4.A.03
Piętro: parter
Cena brutto za 1 m²: 10 757 zł
Odbiór od: 2026-01-05
Cechy:
 Gotowe do odbioru Ogródek
sprzedane
45.51 m² Metraż
486 000 zł Cena brutto
2 Pokoje
Inwestycja: Nowe Południe
Nr oferty: 4.A.04
Piętro: parter
Cena brutto za 1 m²: 10 679 zł
Odbiór od: 2026-01-05
Cechy:
 Gotowe do odbioru Ogródek
sprzedane
66.44 m² Metraż
644 000 zł Cena brutto
3 Pokoje
Inwestycja: Nowe Południe
Nr oferty: 4.A.05
Piętro: 1
Cena brutto za 1 m²: 9 693 zł
Odbiór od: 2026-01-05
Cechy:
 Gotowe do odbioru Obszerny taras
sprzedane
47.79 m² Metraż
483 000 zł Cena brutto
2 Pokoje
Inwestycja: Nowe Południe
Nr oferty: 4.A.06
Piętro: 1
Cena brutto za 1 m²: 10 107 zł
Odbiór od: 2026-01-05
Cechy:
 Gotowe do odbioru Balkon
sprzedane
44.26 m² Metraż
465 000 zł Cena brutto
2 Pokoje
Inwestycja: Nowe Południe
Nr oferty: 4.A.08
Piętro: 1
Cena brutto za 1 m²: 10 506 zł
Odbiór od: 2026-01-05
Cechy:
 Gotowe do odbioru Balkon
sprzedane
45.92 m² Metraż
482 000 zł Cena brutto
2 Pokoje
Inwestycja: Nowe Południe
Nr oferty: 4.A.09
Piętro: 1
Cena brutto za 1 m²: 10 497 zł
Odbiór od: 2026-01-05
Cechy:
 Gotowe do odbioru Balkon
sprzedane
47.43 m² Metraż
495 000 zł Cena brutto
2 Pokoje
Inwestycja: Nowe Południe
Nr oferty: 4.A.1
Piętro: parter
Cena brutto za 1 m²: 10 436 zł
Odbiór od: 2026-01-05
Cechy:
 Gotowe do odbioru
sprzedane
45.68 m² Metraż
469 000 zł Cena brutto
2 Pokoje
Inwestycja: Nowe Południe
Nr oferty: 4.A.10
Piętro: 1
Cena brutto za 1 m²: 10 267 zł
Odbiór od: 2026-01-05
Cechy:
 Gotowe do odbioru Obszerny taras
sprzedane
35.99 m² Metraż
396 000 zł Cena brutto
2 Pokoje
Inwestycja: Nowe Południe
Nr oferty: 4.A.11
Piętro: 1
Cena brutto za 1 m²: 11 003 zł
Odbiór od: 2026-01-05
Cechy:
 Gotowe do odbioru Balkon
sprzedane
47.79 m² Metraż
489 000 zł Cena brutto
2 Pokoje
Inwestycja: Nowe Południe
Nr oferty: 4.A.13
Piętro: 2
Cena brutto za 1 m²: 10 232 zł
Odbiór od: 2026-01-05
Cechy:
 Gotowe do odbioru Balkon
sprzedane
45.50 m² Metraż
486 000 zł Cena brutto
2 Pokoje
Inwestycja: Nowe Południe
Nr oferty: 4.A.14
Piętro: 2
Cena brutto za 1 m²: 10 681 zł
Odbiór od: 2026-01-05
Cechy:
 Gotowe do odbioru Balkon
sprzedane
44.26 m² Metraż
474 000 zł Cena brutto
2 Pokoje
Inwestycja: Nowe Południe
Nr oferty: 4.A.15
Piętro: 2
Cena brutto za 1 m²: 10 709 zł
Odbiór od: 2026-01-05
Cechy:
 Gotowe do odbioru Balkon
sprzedane
45.92 m² Metraż
491 000 zł Cena brutto
2 Pokoje
Inwestycja: Nowe Południe
Nr oferty: 4.A.16
Piętro: 2
Cena brutto za 1 m²: 10 693 zł
Odbiór od: 2026-01-05
Cechy:
 Gotowe do odbioru Balkon
sprzedane
36.27 m² Metraż
410 000 zł Cena brutto
2 Pokoje
Inwestycja: Nowe Południe
Nr oferty: 4.A.18
Piętro: 2
Cena brutto za 1 m²: 11 304 zł
Odbiór od: 2026-01-05
Cechy:
 Gotowe do odbioru Balkon
sprzedane
44.90 m² Metraż
480 000 zł Cena brutto
2 Pokoje
Inwestycja: Nowe Południe
Nr oferty: 4.A.2
Piętro: parter
Cena brutto za 1 m²: 10 690 zł
Odbiór od: 2026-01-05
Cechy:
 Gotowe do odbioru
sprzedane
47.79 m² Metraż
513 000 zł Cena brutto
2 Pokoje
Inwestycja: Nowe Południe
Nr oferty: 4.A.20
Piętro: 3
Cena brutto za 1 m²: 10 734 zł
Odbiór od: 2026-01-05
Cechy:
 Gotowe do odbioru Balkon
sprzedane
45.50 m² Metraż
499 000 zł Cena brutto
2 Pokoje
Inwestycja: Nowe Południe
Nr oferty: 4.A.21
Piętro: 3
Cena brutto za 1 m²: 10 967 zł
Odbiór od: 2026-01-05
Cechy:
 Gotowe do odbioru Balkon
sprzedane
44.26 m² Metraż
488 000 zł Cena brutto
2 Pokoje
Inwestycja: Nowe Południe
Nr oferty: 4.A.22
Piętro: 3
Cena brutto za 1 m²: 11 026 zł
Odbiór od: 2026-01-05
Cechy:
 Gotowe do odbioru Balkon
sprzedane
45.92 m² Metraż
504 000 zł Cena brutto
2 Pokoje
Inwestycja: Nowe Południe
Nr oferty: 4.A.23
Piętro: 3
Cena brutto za 1 m²: 10 976 zł
Odbiór od: 2026-01-05
Cechy:
 Gotowe do odbioru Balkon
sprzedane
46.03 m² Metraż
478 000 zł Cena brutto
2 Pokoje
Inwestycja: Nowe Południe
Nr oferty: 4.A.24
Piętro: 3
Cena brutto za 1 m²: 10 385 zł
Odbiór od: 2026-01-05
Cechy:
 Gotowe do odbioru Balkon
sprzedane
36.27 m² Metraż
425 000 zł Cena brutto
2 Pokoje
Inwestycja: Nowe Południe
Nr oferty: 4.A.25
Piętro: 3
Cena brutto za 1 m²: 11 718 zł
Odbiór od: 2026-01-05
Cechy:
 Gotowe do odbioru Balkon
sprzedane
47.79 m² Metraż
519 000 zł Cena brutto
2 Pokoje
Inwestycja: Nowe Południe
Nr oferty: 4.A.27
Piętro: 4
Cena brutto za 1 m²: 10 860 zł
Odbiór od: 2026-01-05
Cechy:
 Gotowe do odbioru Balkon
sprzedane
44.26 m² Metraż
505 000 zł Cena brutto
2 Pokoje
Inwestycja: Nowe Południe
Nr oferty: 4.A.29
Piętro: 4
Cena brutto za 1 m²: 11 410 zł
Odbiór od: 2026-01-05
Cechy:
 Gotowe do odbioru Balkon
sprzedane
43.88 m² Metraż
472 000 zł Cena brutto
2 Pokoje
Inwestycja: Nowe Południe
Nr oferty: 4.A.3
Piętro: parter
Cena brutto za 1 m²: 10 757 zł
Odbiór od: 2026-01-05
Cechy:
 Gotowe do odbioru
sprzedane
46.03 m² Metraż
485 000 zł Cena brutto
2 Pokoje
Inwestycja: Nowe Południe
Nr oferty: 4.A.31
Piętro: 4
Cena brutto za 1 m²: 10 537 zł
Odbiór od: 2026-01-05
Cechy:
 Gotowe do odbioru Balkon
sprzedane
36.27 m² Metraż
435 000 zł Cena brutto
2 Pokoje
Inwestycja: Nowe Południe
Nr oferty: 4.A.32
Piętro: 4
Cena brutto za 1 m²: 11 993 zł
Odbiór od: 2026-01-05
Cechy:
 Gotowe do odbioru Balkon
sprzedane
45.51 m² Metraż
486 000 zł Cena brutto
2 Pokoje
Inwestycja: Nowe Południe
Nr oferty: 4.A.4
Piętro: parter
Cena brutto za 1 m²: 10 679 zł
Odbiór od: 2026-01-05
Cechy:
 Gotowe do odbioru
sprzedane
47.79 m² Metraż
483 000 zł Cena brutto
2 Pokoje
Inwestycja: Nowe Południe
Nr oferty: 4.A.6
Piętro: 1
Cena brutto za 1 m²: 10 107 zł
Odbiór od: 2026-01-05
Cechy:
 Gotowe do odbioru
sprzedane
44.26 m² Metraż
465 000 zł Cena brutto
2 Pokoje
Inwestycja: Nowe Południe
Nr oferty: 4.A.8
Piętro: 1
Cena brutto za 1 m²: 10 506 zł
Odbiór od: 2026-01-05
Cechy:
 Gotowe do odbioru
sprzedane
45.92 m² Metraż
482 000 zł Cena brutto
2 Pokoje
Inwestycja: Nowe Południe
Nr oferty: 4.A.9
Piętro: 1
Cena brutto za 1 m²: 10 497 zł
Odbiór od: 2026-01-05
Cechy:
 Gotowe do odbioru
sprzedane
45.51 m² Metraż
486 000 zł Cena brutto
2 Pokoje
Inwestycja: Nowe Południe
Nr oferty: 4.B.01
Piętro: parter
Cena brutto za 1 m²: 10 679 zł
Odbiór od: 2026-01-05
Cechy:
 Gotowe do odbioru Ogródek
sprzedane
43.88 m² Metraż
472 000 zł Cena brutto
2 Pokoje
Inwestycja: Nowe Południe
Nr oferty: 4.B.02
Piętro: parter
Cena brutto za 1 m²: 10 757 zł
Odbiór od: 2026-01-05
Cechy:
 Gotowe do odbioru Ogródek
sprzedane
44.90 m² Metraż
471 000 zł Cena brutto
2 Pokoje
Inwestycja: Nowe Południe
Nr oferty: 4.B.03
Piętro: parter
Cena brutto za 1 m²: 10 490 zł
Odbiór od: 2026-01-05
Cechy:
 Gotowe do odbioru Ogródek
sprzedane
47.43 m² Metraż
495 000 zł Cena brutto
2 Pokoje
Inwestycja: Nowe Południe
Nr oferty: 4.B.04
Piętro: parter
Cena brutto za 1 m²: 10 436 zł
Odbiór od: 2026-01-05
Cechy:
 Gotowe do odbioru Ogródek
sprzedane
35.99 m² Metraż
385 000 zł Cena brutto
2 Pokoje
Inwestycja: Nowe Południe
Nr oferty: 4.B.05
Piętro: 1
Cena brutto za 1 m²: 10 697 zł
Odbiór od: 2026-01-05
Cechy:
 Gotowe do odbioru Balkon
sprzedane
45.68 m² Metraż
479 000 zł Cena brutto
2 Pokoje
Inwestycja: Nowe Południe
Nr oferty: 4.B.06
Piętro: 1
Cena brutto za 1 m²: 10 486 zł
Odbiór od: 2026-01-05
Cechy:
 Gotowe do odbioru Obszerny taras Rabat do 20 000!
sprzedane
45.92 m² Metraż
482 000 zł Cena brutto
2 Pokoje
Inwestycja: Nowe Południe
Nr oferty: 4.B.07
Piętro: 1
Cena brutto za 1 m²: 10 497 zł
Odbiór od: 2026-01-05
Cechy:
 Gotowe do odbioru Balkon
sprzedane
44.26 m² Metraż
465 000 zł Cena brutto
2 Pokoje
Inwestycja: Nowe Południe
Nr oferty: 4.B.08
Piętro: 1
Cena brutto za 1 m²: 10 506 zł
Odbiór od: 2026-01-05
Cechy:
 Gotowe do odbioru Balkon
sprzedane
45.50 m² Metraż
467 000 zł Cena brutto
2 Pokoje
Inwestycja: Nowe Południe
Nr oferty: 4.B.09
Piętro: 1
Cena brutto za 1 m²: 10 264 zł
Odbiór od: 2026-01-05
Cechy:
 Gotowe do odbioru Balkon
sprzedane
47.79 m² Metraż
493 000 zł Cena brutto
2 Pokoje
Inwestycja: Nowe Południe
Nr oferty: 4.B.10
Piętro: 1
Cena brutto za 1 m²: 10 316 zł
Odbiór od: 2026-01-05
Cechy:
 Gotowe do odbioru Balkon
sprzedane
66.79 m² Metraż
646 000 zł Cena brutto
3 Pokoje
Inwestycja: Nowe Południe
Nr oferty: 4.B.11
Piętro: 1
Cena brutto za 1 m²: 9 672 zł
Odbiór od: 2026-01-05
Cechy:
 Gotowe do odbioru Obszerny taras
sprzedane
36.27 m² Metraż
410 000 zł Cena brutto
2 Pokoje
Inwestycja: Nowe Południe
Nr oferty: 4.B.12
Piętro: 2
Cena brutto za 1 m²: 11 304 zł
Odbiór od: 2026-01-05
Cechy:
 Gotowe do odbioru Balkon
sprzedane
46.03 m² Metraż
474 000 zł Cena brutto
2 Pokoje
Inwestycja: Nowe Południe
Nr oferty: 4.B.13
Piętro: 2
Cena brutto za 1 m²: 10 298 zł
Odbiór od: 2026-01-05
Cechy:
 Gotowe do odbioru Balkon
sprzedane
44.26 m² Metraż
474 000 zł Cena brutto
2 Pokoje
Inwestycja: Nowe Południe
Nr oferty: 4.B.15
Piętro: 2
Cena brutto za 1 m²: 10 709 zł
Odbiór od: 2026-01-05
Cechy:
 Gotowe do odbioru Balkon
sprzedane
45.50 m² Metraż
476 000 zł Cena brutto
2 Pokoje
Inwestycja: Nowe Południe
Nr oferty: 4.B.16
Piętro: 2
Cena brutto za 1 m²: 10 462 zł
Odbiór od: 2026-01-05
Cechy:
 Gotowe do odbioru Balkon
sprzedane
47.79 m² Metraż
499 000 zł Cena brutto
2 Pokoje
Inwestycja: Nowe Południe
Nr oferty: 4.B.17
Piętro: 2
Cena brutto za 1 m²: 10 442 zł
Odbiór od: 2026-01-05
Cechy:
 Gotowe do odbioru Balkon
sprzedane
36.27 m² Metraż
425 000 zł Cena brutto
2 Pokoje
Inwestycja: Nowe Południe
Nr oferty: 4.B.19
Piętro: 3
Cena brutto za 1 m²: 11 718 zł
Odbiór od: 2026-01-05
Cechy:
 Gotowe do odbioru Balkon
sprzedane
46.03 m² Metraż
478 000 zł Cena brutto
2 Pokoje
Inwestycja: Nowe Południe
Nr oferty: 4.B.20
Piętro: 3
Cena brutto za 1 m²: 10 385 zł
Odbiór od: 2026-01-05
Cechy:
 Gotowe do odbioru Balkon
sprzedane
45.92 m² Metraż
505 000 zł Cena brutto
2 Pokoje
Inwestycja: Nowe Południe
Nr oferty: 4.B.21
Piętro: 3
Cena brutto za 1 m²: 10 997 zł
Odbiór od: 2026-01-05
Cechy:
 Gotowe do odbioru Balkon
sprzedane
44.26 m² Metraż
487 000 zł Cena brutto
2 Pokoje
Inwestycja: Nowe Południe
Nr oferty: 4.B.22
Piętro: 3
Cena brutto za 1 m²: 11 003 zł
Odbiór od: 2026-01-05
Cechy:
 Gotowe do odbioru Balkon
sprzedane
47.79 m² Metraż
513 000 zł Cena brutto
2 Pokoje
Inwestycja: Nowe Południe
Nr oferty: 4.B.24
Piętro: 3
Cena brutto za 1 m²: 10 734 zł
Odbiór od: 2026-01-05
Cechy:
 Gotowe do odbioru Balkon
sprzedane
36.27 m² Metraż
435 000 zł Cena brutto
2 Pokoje
Inwestycja: Nowe Południe
Nr oferty: 4.B.26
Piętro: 4
Cena brutto za 1 m²: 11 993 zł
Odbiór od: 2026-01-05
Cechy:
 Gotowe do odbioru Balkon
sprzedane
46.03 m² Metraż
485 000 zł Cena brutto
2 Pokoje
Inwestycja: Nowe Południe
Nr oferty: 4.B.27
Piętro: 4
Cena brutto za 1 m²: 10 537 zł
Odbiór od: 2026-01-05
Cechy:
 Gotowe do odbioru Balkon
sprzedane
45.92 m² Metraż
518 000 zł Cena brutto
2 Pokoje
Inwestycja: Nowe Południe
Nr oferty: 4.B.28
Piętro: 4
Cena brutto za 1 m²: 11 280 zł
Odbiór od: 2026-01-05
Cechy:
 Gotowe do odbioru Balkon
sprzedane
44.26 m² Metraż
505 000 zł Cena brutto
2 Pokoje
Inwestycja: Nowe Południe
Nr oferty: 4.B.29
Piętro: 4
Cena brutto za 1 m²: 11 410 zł
Odbiór od: 2026-01-05
Cechy:
 Gotowe do odbioru Balkon Rabat do 20 000!
sprzedane
47.79 m² Metraż
519 000 zł Cena brutto
2 Pokoje
Inwestycja: Nowe Południe
Nr oferty: 4.B.31
Piętro: 4
Cena brutto za 1 m²: 10 860 zł
Odbiór od: 2026-01-05
Cechy:
 Gotowe do odbioru Balkon
sprzedane
67.47 m² Metraż
674 000 zł Cena brutto
3 Pokoje
Inwestycja: Nowe Południe
Nr oferty: 4.B.32
Piętro: 4
Cena brutto za 1 m²: 9 990 zł
Odbiór od: 2026-01-05
Cechy:
 Gotowe do odbioru Balkon
sprzedane
35.99 m² Metraż
385 000 zł Cena brutto
2 Pokoje
Inwestycja: Nowe Południe
Nr oferty: 4.B.5
Piętro: 1
Cena brutto za 1 m²: 10 697 zł
Odbiór od: 2026-01-05
Cechy:
 Gotowe do odbioru
sprzedane
45.68 m² Metraż
479 000 zł Cena brutto
2 Pokoje
Inwestycja: Nowe Południe
Nr oferty: 4.B.6
Piętro: 1
Cena brutto za 1 m²: 10 486 zł
Odbiór od: 2026-01-05
Cechy:
 Gotowe do odbioru
sprzedane
45.92 m² Metraż
482 000 zł Cena brutto
2 Pokoje
Inwestycja: Nowe Południe
Nr oferty: 4.B.7
Piętro: 1
Cena brutto za 1 m²: 10 497 zł
Odbiór od: 2026-01-05
Cechy:
 Gotowe do odbioru
sprzedane
44.26 m² Metraż
465 000 zł Cena brutto
2 Pokoje
Inwestycja: Nowe Południe
Nr oferty: 4.B.8
Piętro: 1
Cena brutto za 1 m²: 10 506 zł
Odbiór od: 2026-01-05
Cechy:
 Gotowe do odbioru
sprzedane
45.50 m² Metraż
467 000 zł Cena brutto
2 Pokoje
Inwestycja: Nowe Południe
Nr oferty: 4.B.9
Piętro: 1
Cena brutto za 1 m²: 10 264 zł
Odbiór od: 2026-01-05
Cechy:
 Gotowe do odbioru
sprzedane
64.82 m² Metraż
662 000 zł
Cena brutto
3 Pokoje
Inwestycja: Nowe Południe
Nr oferty: 5.A.01
Piętro: parter
Cena brutto za 1 m²: 10 213 zł
Odbiór od: 2026-07-15
Cechy:
Ogródek
sprzedane
78.07 m² Metraż
726 000 zł Cena brutto
4 Pokoje
Inwestycja: Nowe Południe
Nr oferty: 5.A.02
Piętro: parter
Cena brutto za 1 m²: 9 299 zł
Odbiór od: 2026-07-15
Cechy:
Duży ogródek Ogródek Dwustronne mieszkania
sprzedane
38.59 m² Metraż
450 000 zł Cena brutto
2 Pokoje
Inwestycja: Nowe Południe
Nr oferty: 5.A.03
Piętro: parter
Cena brutto za 1 m²: 11 661 zł
Odbiór od: 2026-07-15
Cechy:
Ogródek
sprzedane
78.94 m² Metraż
714 000 zł Cena brutto
4 Pokoje
Inwestycja: Nowe Południe
Nr oferty: 5.A.07
Piętro: 1
Cena brutto za 1 m²: 9 045 zł
Odbiór od: 2026-07-15
Cechy:
Balkon
sprzedane
38.76 m² Metraż
440 000 zł Cena brutto
2 Pokoje
Inwestycja: Nowe Południe
Nr oferty: 5.A.08
Piętro: 1
Cena brutto za 1 m²: 11 352 zł
Odbiór od: 2026-07-15
Cechy:
Balkon
sprzedane
49.01 m² Metraż
506 000 zł Cena brutto
2 Pokoje
Inwestycja: Nowe Południe
Nr oferty: 5.A.09
Piętro: 1
Cena brutto za 1 m²: 10 324 zł
Odbiór od: 2026-07-15
Cechy:
Balkon Dwustronne mieszkania
sprzedane
78.94 m² Metraż
726 000 zł Cena brutto
4 Pokoje
Inwestycja: Nowe Południe
Nr oferty: 5.A.12
Piętro: 2
Cena brutto za 1 m²: 9 197 zł
Odbiór od: 2026-07-15
Cechy:
Balkon
sprzedane
38.76 m² Metraż
450 000 zł Cena brutto
2 Pokoje
Inwestycja: Nowe Południe
Nr oferty: 5.A.13
Piętro: 2
Cena brutto za 1 m²: 11 610 zł
Odbiór od: 2026-07-15
Cechy:
Balkon
sprzedane
49.01 m² Metraż
511 000 zł Cena brutto
2 Pokoje
Inwestycja: Nowe Południe
Nr oferty: 5.A.14
Piętro: 2
Cena brutto za 1 m²: 10 426 zł
Odbiór od: 2026-07-15
Cechy:
Balkon Dwustronne mieszkania
sprzedane
78.94 m² Metraż
734 000 zł Cena brutto
4 Pokoje
Inwestycja: Nowe Południe
Nr oferty: 5.A.17
Piętro: 3
Cena brutto za 1 m²: 9 298 zł
Odbiór od: 2026-07-15
Cechy:
Balkon
sprzedane
38.76 m² Metraż
454 000 zł Cena brutto
2 Pokoje
Inwestycja: Nowe Południe
Nr oferty: 5.A.18
Piętro: 3
Cena brutto za 1 m²: 11 713 zł
Odbiór od: 2026-07-15
Cechy:
Balkon
sprzedane
49.01 m² Metraż
517 000 zł Cena brutto
2 Pokoje
Inwestycja: Nowe Południe
Nr oferty: 5.A.19
Piętro: 3
Cena brutto za 1 m²: 10 549 zł
Odbiór od: 2026-07-15
Cechy:
Balkon Dwustronne mieszkania
sprzedane
65.08 m² Metraż
693 000 zł Cena brutto
3 Pokoje
Inwestycja: Nowe Południe
Nr oferty: 5.A.21
Piętro: 4
Cena brutto za 1 m²: 10 648 zł
Odbiór od: 2026-07-15
Cechy:
Balkon
sprzedane
78.94 m² Metraż
739 000 zł Cena brutto
4 Pokoje
Inwestycja: Nowe Południe
Nr oferty: 5.A.22
Piętro: 4
Cena brutto za 1 m²: 9 362 zł
Odbiór od: 2026-07-15
Cechy:
Balkon
sprzedane
38.76 m² Metraż
459 000 zł Cena brutto
2 Pokoje
Inwestycja: Nowe Południe
Nr oferty: 5.A.23
Piętro: 4
Cena brutto za 1 m²: 11 842 zł
Odbiór od: 2026-07-15
Cechy:
Balkon
sprzedane
49.01 m² Metraż
523 000 zł Cena brutto
2 Pokoje
Inwestycja: Nowe Południe
Nr oferty: 5.A.24
Piętro: 4
Cena brutto za 1 m²: 10 671 zł
Odbiór od: 2026-07-15
Cechy:
Balkon Dwustronne mieszkania
sprzedane
78.94 m² Metraż
748 000 zł Cena brutto
4 Pokoje
Inwestycja: Nowe Południe
Nr oferty: 5.A.27
Piętro: 5
Cena brutto za 1 m²: 9 476 zł
Odbiór od: 2026-07-15
Cechy:
Balkon
sprzedane
38.76 m² Metraż
463 000 zł Cena brutto
2 Pokoje
Inwestycja: Nowe Południe
Nr oferty: 5.A.28
Piętro: 5
Cena brutto za 1 m²: 11 945 zł
Odbiór od: 2026-07-15
Cechy:
Balkon
sprzedane
67.06 m² Metraż
661 000 zł Cena brutto
3 Pokoje
Inwestycja: Nowe Południe
Nr oferty: 9.A.05
Piętro: 1
Cena brutto za 1 m²: 9 857 zł
Odbiór od: 2026-11-16
Cechy:
Obszerny taras
sprzedane
45.92 m² Metraż
488 000 zł Cena brutto
2 Pokoje
Inwestycja: Nowe Południe
Nr oferty: 9.A.09
Piętro: 1
Cena brutto za 1 m²: 10 627 zł
Odbiór od: 2026-11-16
Cechy:
Balkon
sprzedane
45.68 m² Metraż
477 000 zł Cena brutto
2 Pokoje
Inwestycja: Nowe Południe
Nr oferty: 9.A.10
Piętro: 1
Cena brutto za 1 m²: 10 442 zł
Odbiór od: 2026-11-16
Cechy:
Obszerny taras
sprzedane
35.99 m² Metraż
425 000 zł Cena brutto
2 Pokoje
Inwestycja: Nowe Południe
Nr oferty: 9.A.11
Piętro: 1
Cena brutto za 1 m²: 11 809 zł
Odbiór od: 2026-11-16
Cechy:
Obszerny taras
sprzedane
46.03 m² Metraż
498 000 zł Cena brutto
2 Pokoje
Inwestycja: Nowe Południe
Nr oferty: 9.A.24
Piętro: 3
Cena brutto za 1 m²: 10 819 zł
Odbiór od: 2026-11-16
Cechy:
Balkon
sprzedane
47.43 m² Metraż
503 000 zł Cena brutto
2 Pokoje
Inwestycja: Nowe Południe
Nr oferty: 9.B.04
Piętro: parter
Cena brutto za 1 m²: 10 605 zł
Odbiór od: 2026-11-16
Cechy:
Ogródek
sprzedane
35.99 m² Metraż
425 000 zł Cena brutto
2 Pokoje
Inwestycja: Nowe Południe
Nr oferty: 9.B.05
Piętro: 1
Cena brutto za 1 m²: 11 809 zł
Odbiór od: 2026-11-16
Cechy:
Obszerny taras
sprzedane
45.68 m² Metraż
477 000 zł Cena brutto
2 Pokoje
Inwestycja: Nowe Południe
Nr oferty: 9.B.06
Piętro: 1
Cena brutto za 1 m²: 10 442 zł
Odbiór od: 2026-11-16
Cechy:
Obszerny taras
sprzedane
47.79 m² Metraż
499 000 zł Cena brutto
2 Pokoje
Inwestycja: Nowe Południe
Nr oferty: 9.B.10
Piętro: 1
Cena brutto za 1 m²: 10 442 zł
Odbiór od: 2026-11-16
Cechy:
Balkon
sprzedane
66.63 m² Metraż
665 000 zł Cena brutto
3 Pokoje
Inwestycja: Nowe Południe
Nr oferty: 9.B.11
Piętro: 1
Cena brutto za 1 m²: 9 980 zł
Odbiór od: 2026-11-16
Cechy:
Obszerny taras
sprzedane
36.27 m² Metraż
435 000 zł Cena brutto
2 Pokoje
Inwestycja: Nowe Południe
Nr oferty: 9.B.12
Piętro: 2
Cena brutto za 1 m²: 11 993 zł
Odbiór od: 2026-11-16
Cechy:
Balkon
sprzedane
44.26 m² Metraż
482 000 zł Cena brutto
2 Pokoje
Inwestycja: Nowe Południe
Nr oferty: 9.B.15
Piętro: 2
Cena brutto za 1 m²: 10 890 zł
Odbiór od: 2026-11-16
Cechy:
Balkon
sprzedane
47.79 m² Metraż
503 000 zł Cena brutto
2 Pokoje
Inwestycja: Nowe Południe
Nr oferty: 9.B.17
Piętro: 2
Cena brutto za 1 m²: 10 525 zł
Odbiór od: 2026-11-16
Cechy:
Balkon
sprzedane
47.79 m² Metraż
512 500 zł Cena brutto
2 Pokoje
Inwestycja: Nowe Południe
Nr oferty: 9.B.24
Piętro: 3
Cena brutto za 1 m²: 10 724 zł
Odbiór od: 2026-11-16
Cechy:
Balkon

Dodatkowo w ofercie

komórka lokatorska (zakup obligatoryjny) 9.000 PLN brutto (w tym podatek 8%)
miejsce postojowe w hali garażowej 32.000 PLN brutto (w tym podatek 8%)
miejsce postojowe w hali garażowej z boksem 40.000 PLN brutto (w tym podatek 8%)
miejsce postojowe naziemne 15.000 PLN brutto (w tym podatek 8%)
możliwość dostosowania miejsca postojowego w hali garażowej do ładowania pojazdów elektrycznych za dopłatą 16.200 PLN brutto (w tym podatek 8%)
Cena balkonu, tarasu, udział w częściach wspólnych oraz drodze wliczona jest w cenę mieszkania.
Firma Domesta

DOMESTA Sp. z o.o.
ul. Budowlanych 68 B
80-298 Gdańsk
Pn. – Pt. 07:00 - 15:00
Tel.: 58 349 56 65
E-mail:

NIP: 584-020-15-94
REGON: 190561509
KRS: 0000061417


Sąd Rejonowy Gdańsk - Północ w Gdańsku, VII Wydział Gospodarczy
Kapitał zakładowy 3.256.000,00 zł.

 

 

Biura sprzedaży

Biuro przy ul. Guderskiego/ Czermińskiego
przy rondzie im. 77 Pułku, Gdańsk
Pn. - Pt. 09:00 - 17:00

Biuro przy ul. Starogardzkiej/ Borkowskiej 
przy rondzie, Gdańsk
Pn. - Pt. 09:00 - 17:00

Biuro przy ul. Smoluchowskiego 3
przy Remedium, Gdańsk
Pn. - Pt. 09:00 - 17:00

Tel.: 58 670 45 16
E-mail:

Oferta
  • Nowe mieszkania Gdańsk
  • Mieszkania gotowe w 2025 Gdańsk
  • Mieszkania gotowe w 2026 Gdańsk
  • Kawalerki
  • Mieszkania 2 pokojowe
  • Mieszkania 3 pokojowe
  • Mieszkania 4 pokojowe
  • Biura na wynajem Gdańsk
  • Kredyty
  • Wykończenie pod klucz
  • Mieszkania dwustronne
  • Mieszkania na parterze
  • Mieszkania z balkonem
  • Mieszkania dla rodzin
  • Mieszkania dla singli
  • Mieszkania dla seniorów
Inwestycje deweloperskie
  • Remedium - Gdańsk Aniołki
  • GreenLine - Gdańsk Matemblewo
  • #NaSwoim2 - Gdańsk Chełm
  • Nowe Południe - Gdańsk Południe
  • Urzeka - Gdańsk Jasień

Powyższa oferta i przedstawione materiały graficzne mają charakter jedynie informacyjny, nie mogą być traktowane jako ostateczne projekty realizacyjne, nie stanowią również oferty handlowej w rozumieniu art. 66 §1 Kodeksu Cywilnego oraz innych właściwych przepisów prawnych.

 

 

  • PZFD
  • INPRO
Copyright © 2021 DOMESTA Sp. z o.o.
Polityka prywatności & Cookies Zmień ustawienia ciasteczek
Realizacja: webdesign & CMS Webcumulus
Domesta Deweloper Gdańsk
Nowe Południe
  • O inwestycji
  • Lokalizacja
  • Plany 3D
  • Galeria
  • Cennik
  • Kontakt
  • Lista inwestycji
  • Remedium - Gdańsk Aniołki
  • GreenLine - Gdańsk Matemblewo
  • #NaSwoim2 - Gdańsk Chełm
  • Urzeka - Gdańsk Jasień
  • Nowe Południe - Gdańsk Południe
  • Oferta
  • Nowe mieszkania w Gdańsku
  • Mieszkania z odbiorem w 2025 roku
  • Mieszkania z odbiorem w 2026 roku
  • Kawalerki
  • Mieszkania 2 pokojowe
  • Mieszkania 3 pokojowe
  • Mieszkania 4 pokojowe
  • Apartamenty inwestycyjne w Gdańsku
  • Mapa inwestycji
  • Aktualności
  • Kredyty
  • Wykończenie pod klucz
  • Firma
  • Deweloper DOMESTA
  • Zrealizowane inwestycje
  • Deweloper z Gwarancją Plus
  • Domesta Rzetelny Deweloper
  • Wizualizacja i realizacja
  • Prace budowlane
  • Kariera
  • Zakup gruntów
  • Współpraca z podwykonawcami
  • Relacje inwestorskie
  • Polityka prywatności
  • Blog
  • Kontakt
Domesta Deweloper Gdańsk

Wyślij formularz

Zgoda jest dobrowolna i może zostać wycofana w dowolnym momencie. Szczegóły w polityce prywatności.
* Obowiązkowe pola.
Domesta Deweloper Gdańsk
  • Znajdź mieszkanieMieszkanie
  • Znajdź lokalLokal
Domesta Deweloper Gdańsk
W ofercie ostatnie 3-pokojowe mieszkania z GORĄCYMI RABATAMI! Sprawdź ofertę i nie daj się wyprzedzić!
Czytaj dalej